Продажа дома

Московская область, Павловский Посад, Семейная ул, 11

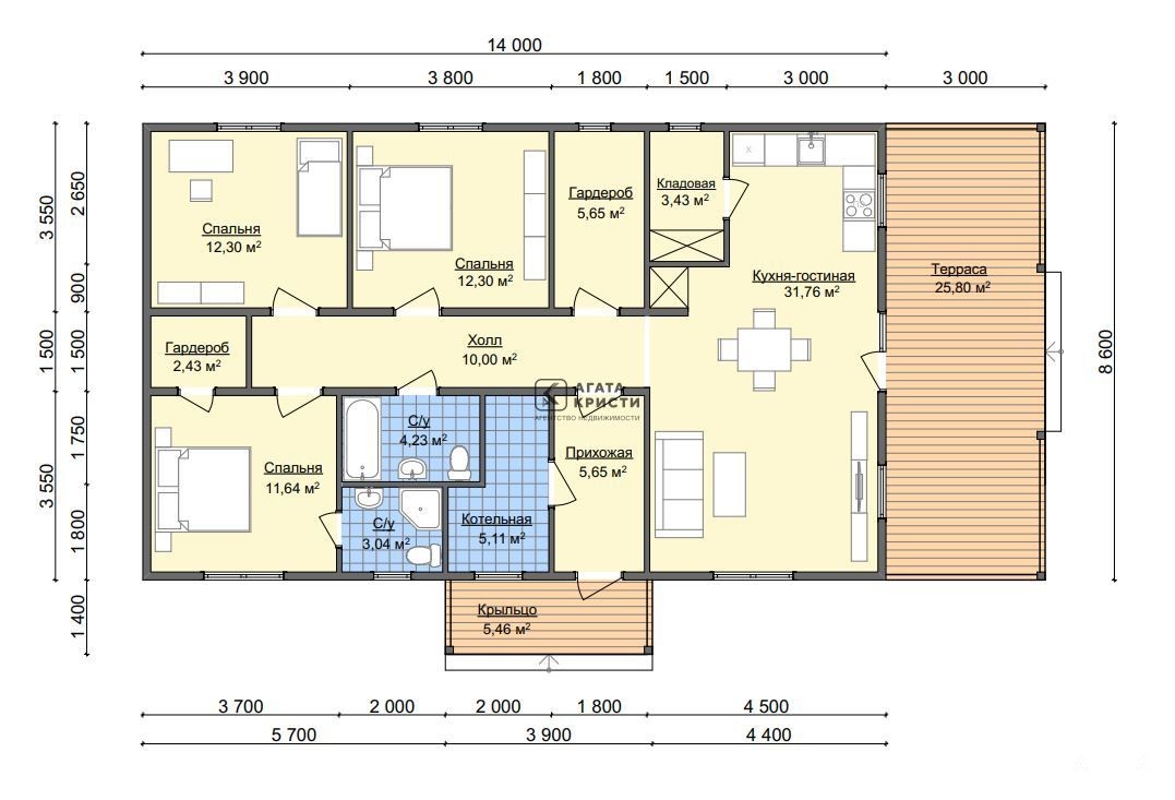
139 м²
Площадь
1
Этажность
5 сот
Площадь участка

10 900 000 ₽

78 418 ₽ за м²

ID объявления 12432964

Поделиться

Добавить в избранное

В продаже дом от застройщика. Общей площадью 139 м²<br /><br />Дом подходит под льготное кредитование "Семейная ипотека" - 6%⚡<br /><br />В доме 3 комнаты, 2 санузла , большая кухня-гостиная, терраса.<br /><br />Дом сдается полностью готовый для проживания. <br /><br />✅Отопление в доме - система теплого пола (водяной контур).<br /><br />✅Водоснабжение - скважина.<br /><br />✅Канализация - биологическая станция.<br /><br />✅ Электричество - 15 киловатт.<br /><br />✅Газ по границе участка. В котельной устанавливается 2 котла (электрический и газовый) для дальнейшего подключения к газовому отоплению.<br /><br />​​​​​​​Более подробная информация по телефону.<br />Номер объекта: #5/545945/11635

Дата обновления: 29 января 2026