Продажа помещения свободного назначения

2 000 000 ₽

90 910 ₽ за м²

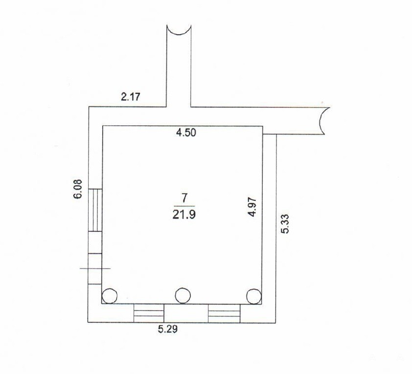
22 м²
Площадь
1/1
Этаж

Поделиться

Добавить в избранное

Арт. 93355958. Помещение‑пристройка с отдельным входом — сдаётся в аренду

Просторное помещение квадратной формы с полным набором коммуникаций — универсальный вариант для бизнеса или проживания.

Основные характеристики:

Вход: отдельный — удобство доступа для клиентов и персонала.



Доступ: круглосуточный (24/7) — работайте или используйте помещение в любое время.



Форма: квадратная — удобная планировка, эффективное использование площади.



Высота потолков: 3, 5 м — ощущение простора и возможности для зонирования.



Место под вывеску: есть — обеспечьте заметность вашего бизнеса.



Коммуникации: подведены и функционируют:

электричество;



отопление;



водоснабжение;



водоотведение.





Подходит для:

склада;



магазина;



пункта выдачи заказов (ПВЗ);



салона красоты или парикмахерской;



мастерской;



офиса;



проживания.



помещение пристройка со своим отдельным входом. Доступ 24/7, круглосуточно, место под вывеску. Помещение квадратной формы. Потолки высота 3.5 м. Есть электричество, отопление, водоотведение и водоснабжение. Под любой вид деятельности (склад, магазин, салон красоты, пункт выдачи, склад, магазин и т.д.) или проживание.

Дата обновления: 29 мая 2026