Аренда помещения свободного назначения

18 000 ₽/мес

9 819 ₽ за м²/год

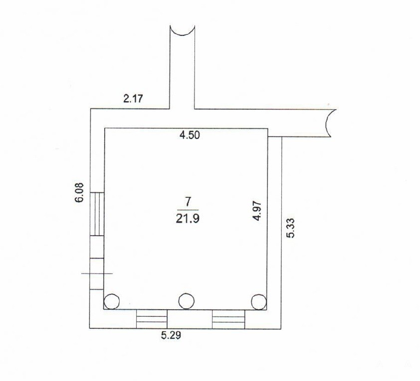
22 м²
Площадь
1/1
Этаж

Поделиться

Добавить в избранное

Арт. 93354670. Сдаётся в аренду помещение свободного назначения (пристройка с отдельным входом)

Просторное помещение квадратной формы с круглосуточным доступом (24/7) — отличная база для развития вашего бизнеса.

Основные характеристики:

Расположение: пристройка с собственным отдельным входом.



Доступ: круглосуточно, без ограничений.



Форма помещения: квадратная — удобная планировка, минимум «мёртвых» зон.



Высота потолков: 3, 5 м — создаёт ощущение простора и даёт возможности для зонирования.



Коммуникации: полностью подведены и функционируют:

электричество;



отопление;



водоснабжение;



водоотведение.





Дополнительно: предусмотрено место под вывеску — обеспечит видимость и узнаваемость вашего бизнеса.



Условия аренды:

Срок: долгосрочная аренда.



Каникулы: возможность арендных каникул обсуждается индивидуально.



Ремонт: условия ремонта и адаптации помещения под нужды арендатора — предмет переговоров.



Юридический адрес: предоставляется.



Подходит для широкого спектра деятельности:

розничная торговля (магазин);



услуги красоты (салон красоты, барбершоп);



пункты выдачи заказов (маркетплейсы);



складские помещения;



офисы, студии, творческие мастерские и т. д.



Записывайтесь на просмотр! Ответим на все вопросы и поможем подобрать оптимальные условия аренды.

Дата обновления: 28 мая 2026